NEWS
PROJETS
ATELIER
CONTACT
NEWS
PROJETS
ATELIER
CONTACT
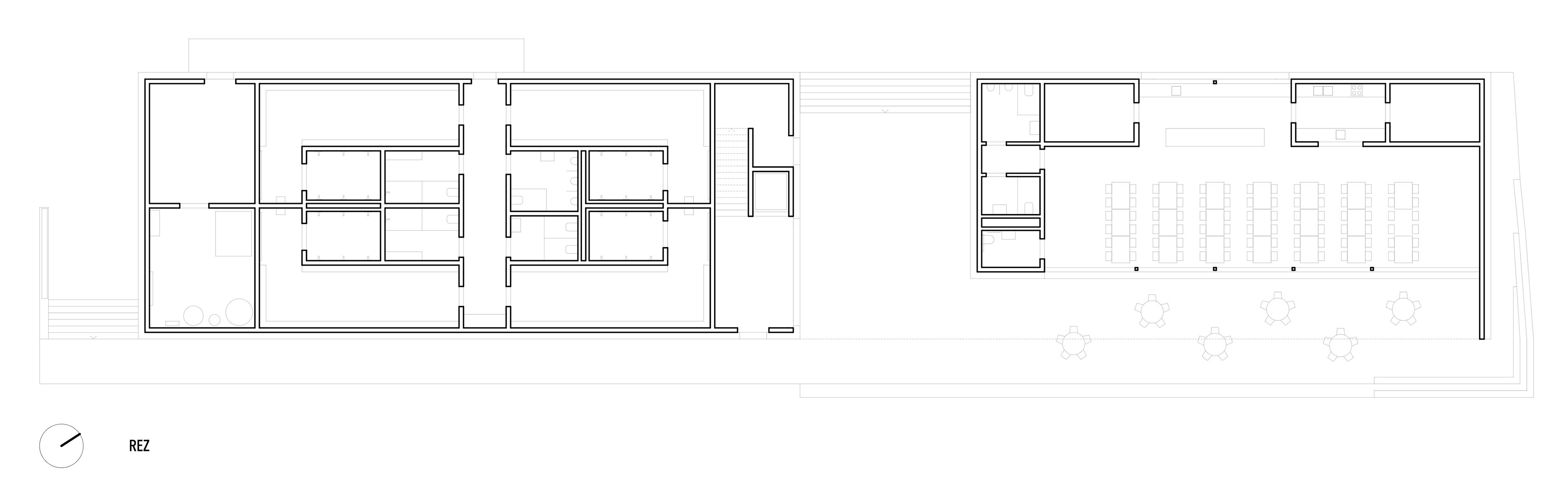
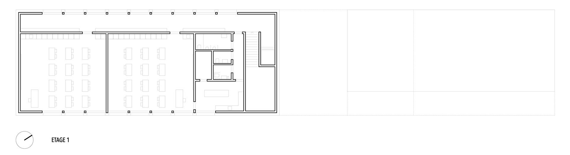
CENTRE SPORTIF ET SCOLAIRE
Cousset
procédure: marché public en procédure ouverte
type: nouvelle construction
année: 2022-2024
état: terminé