NEWS
PROJETS
ATELIER
CONTACT
NEWS
PROJETS
ATELIER
CONTACT
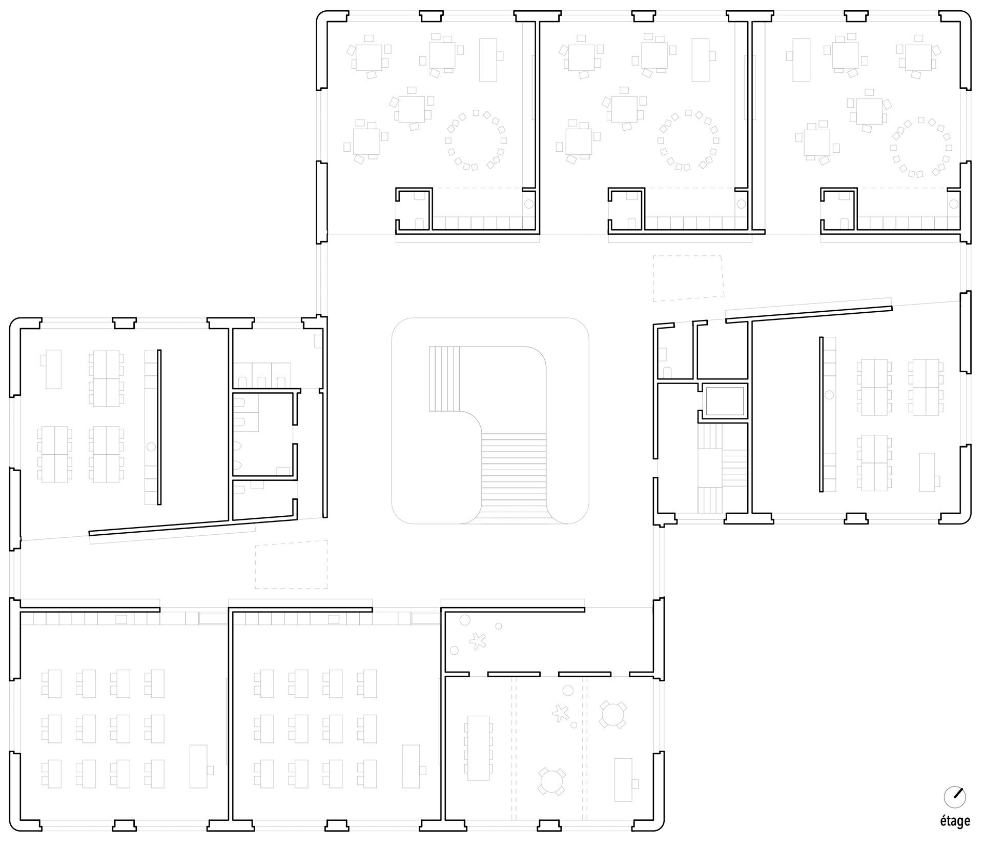
CONCOURS ECOLE
Broc
procédure: concours ouvert de projets d'architecture
type: nouvelle construction
année: 2023
distinction: projet non primé