NEWS
PROJETS
ATELIER
CONTACT
NEWS
PROJETS
ATELIER
CONTACT
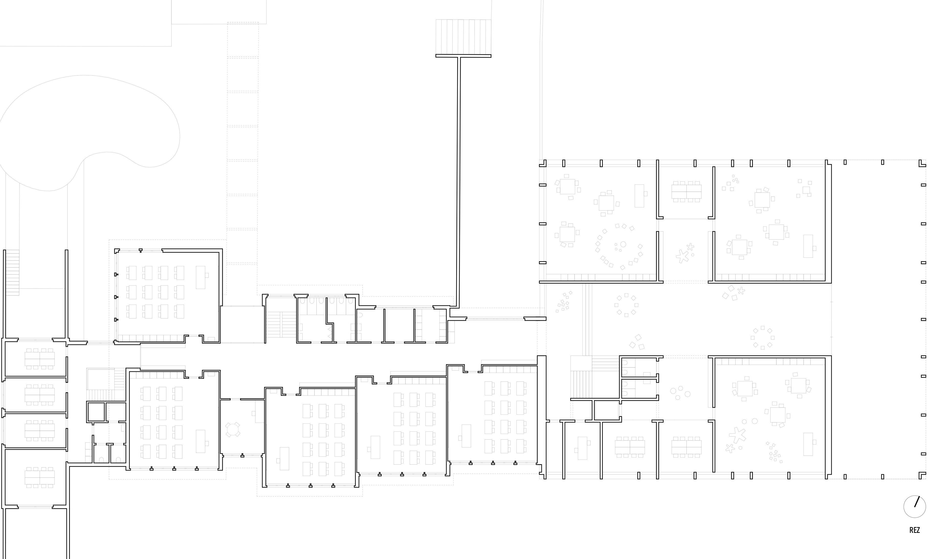
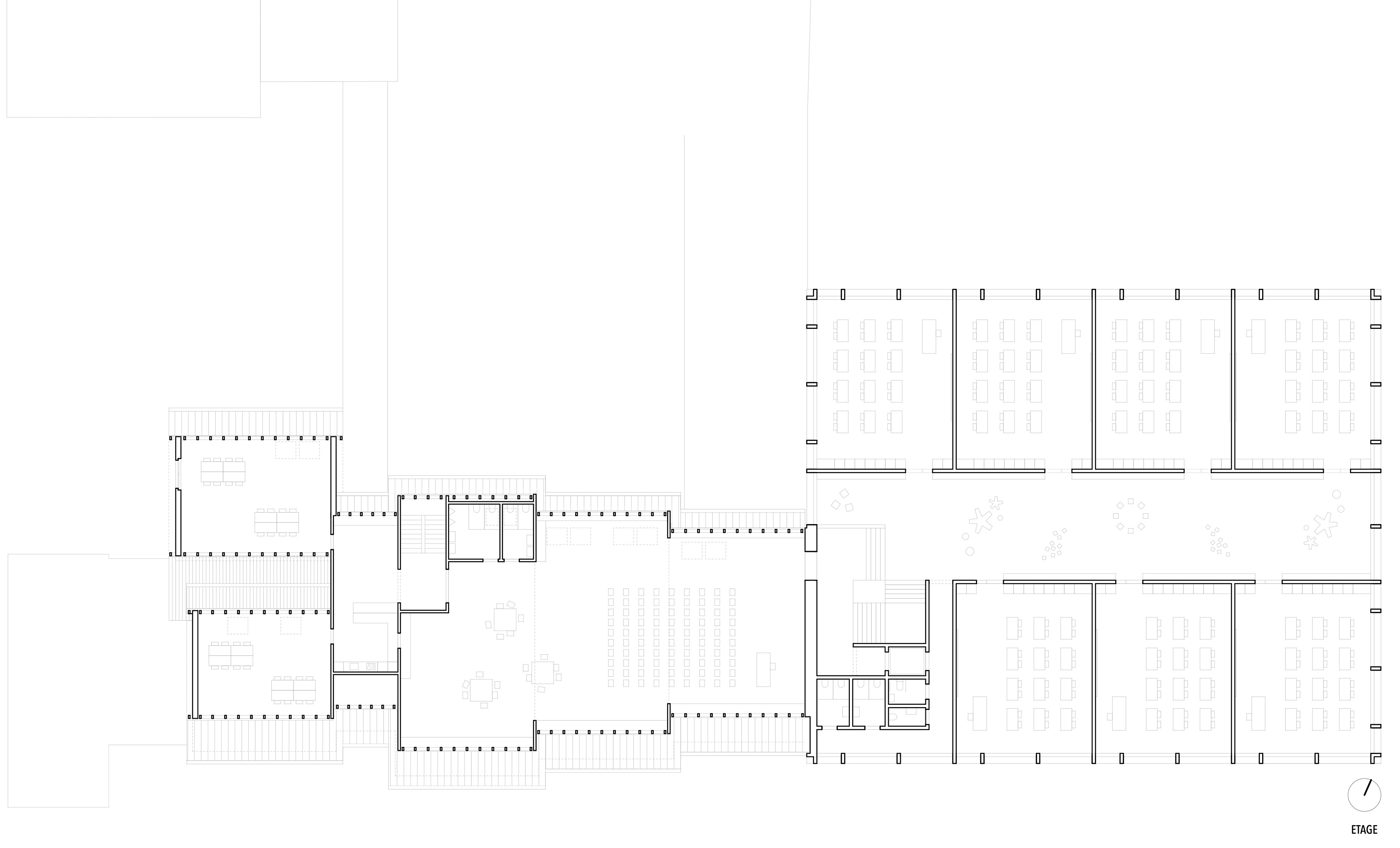
CONCOURS ECOLE MATRAN
Matran
procédure: concours ouvert de projets d'architecture
type: nouvelle construction
année: 2021
distinction: 2ème tour