NEWS
PROJETS
ATELIER
CONTACT
NEWS
PROJETS
ATELIER
CONTACT
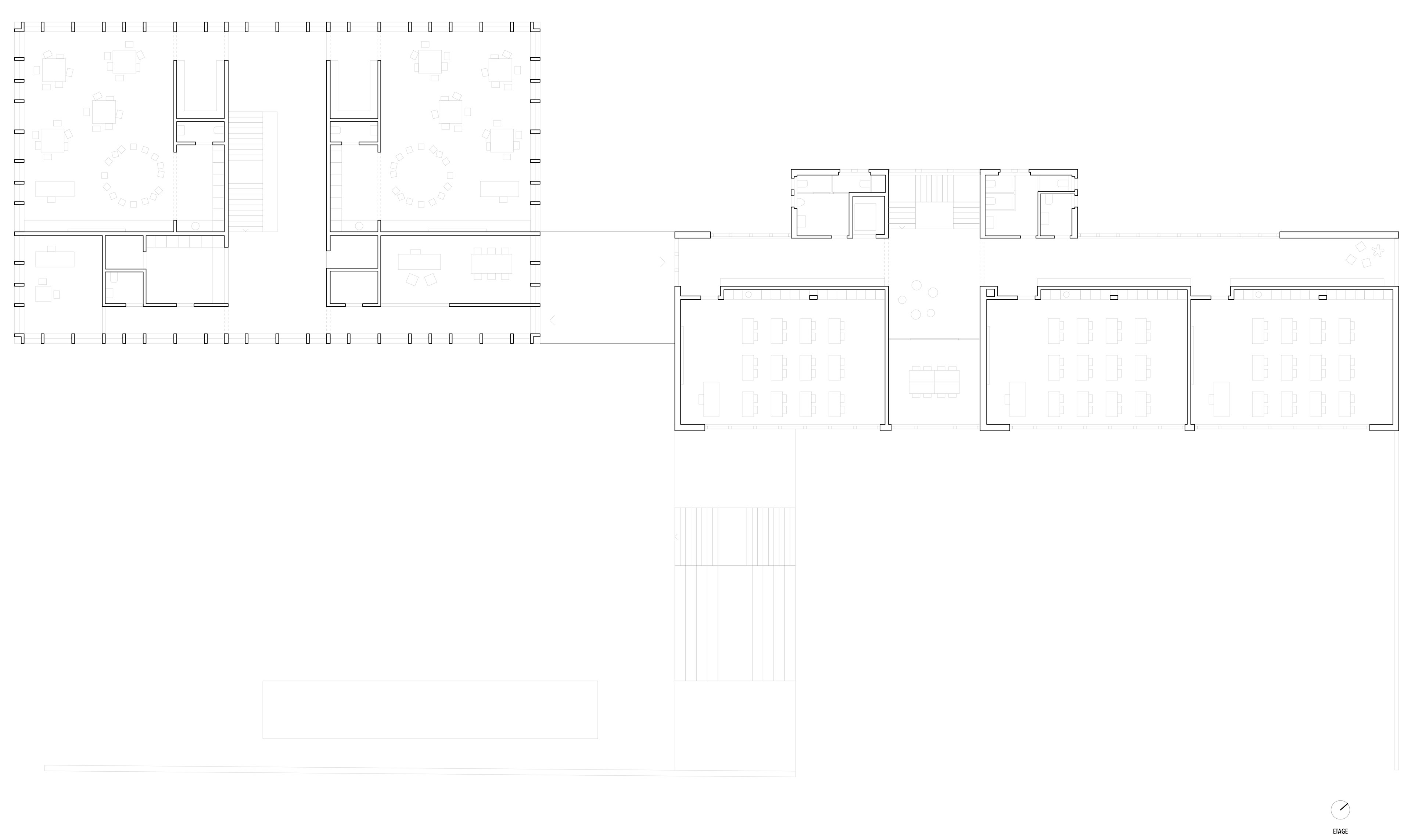
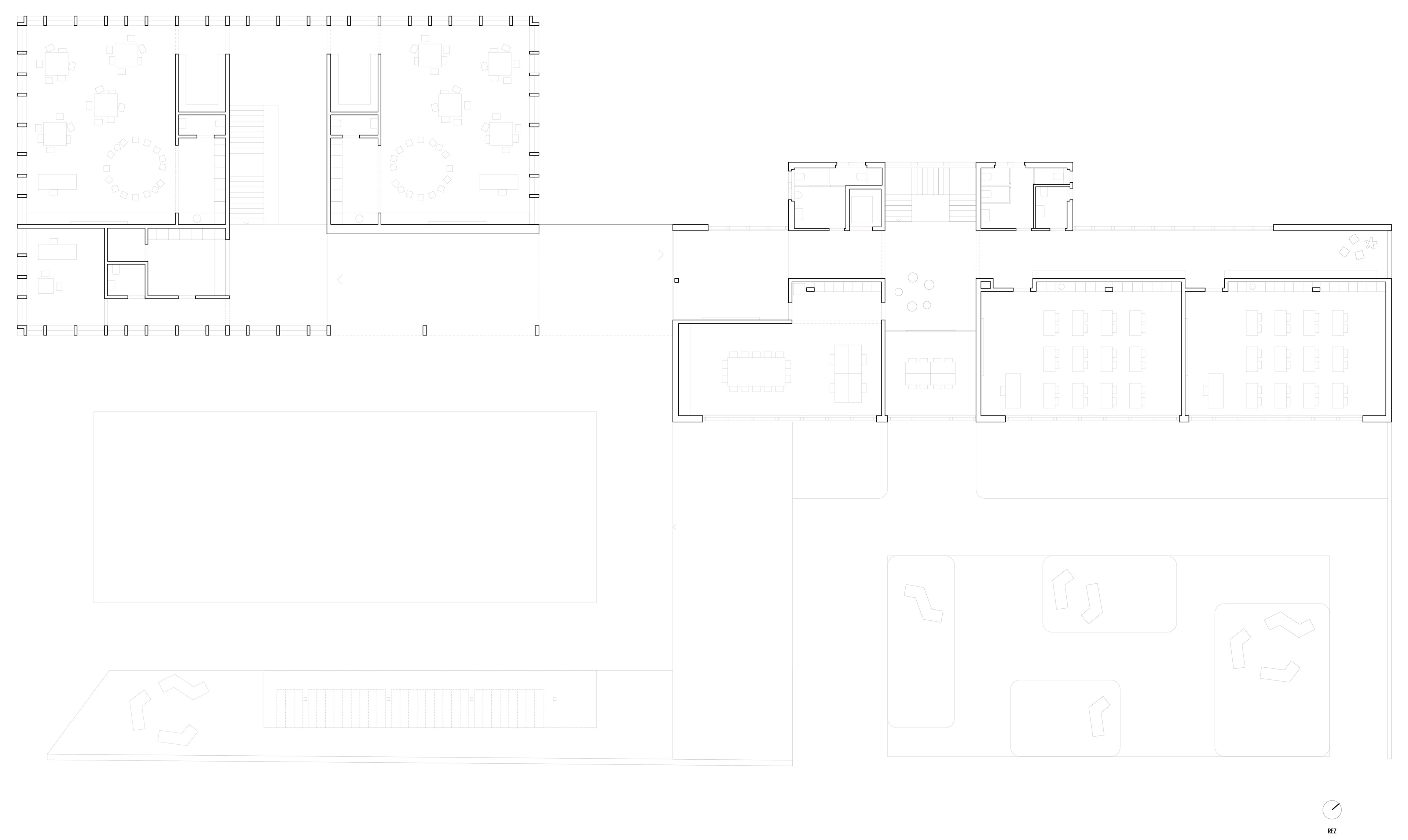
MEP ECOLE LA ROCHE
La Roche
procédure: concours sur invitation
type: transformation et agrandissement
année: 2022-2023
distinction: 2ème rang