NEWS
PROJETS
ATELIER
CONTACT
NEWS
PROJETS
ATELIER
CONTACT
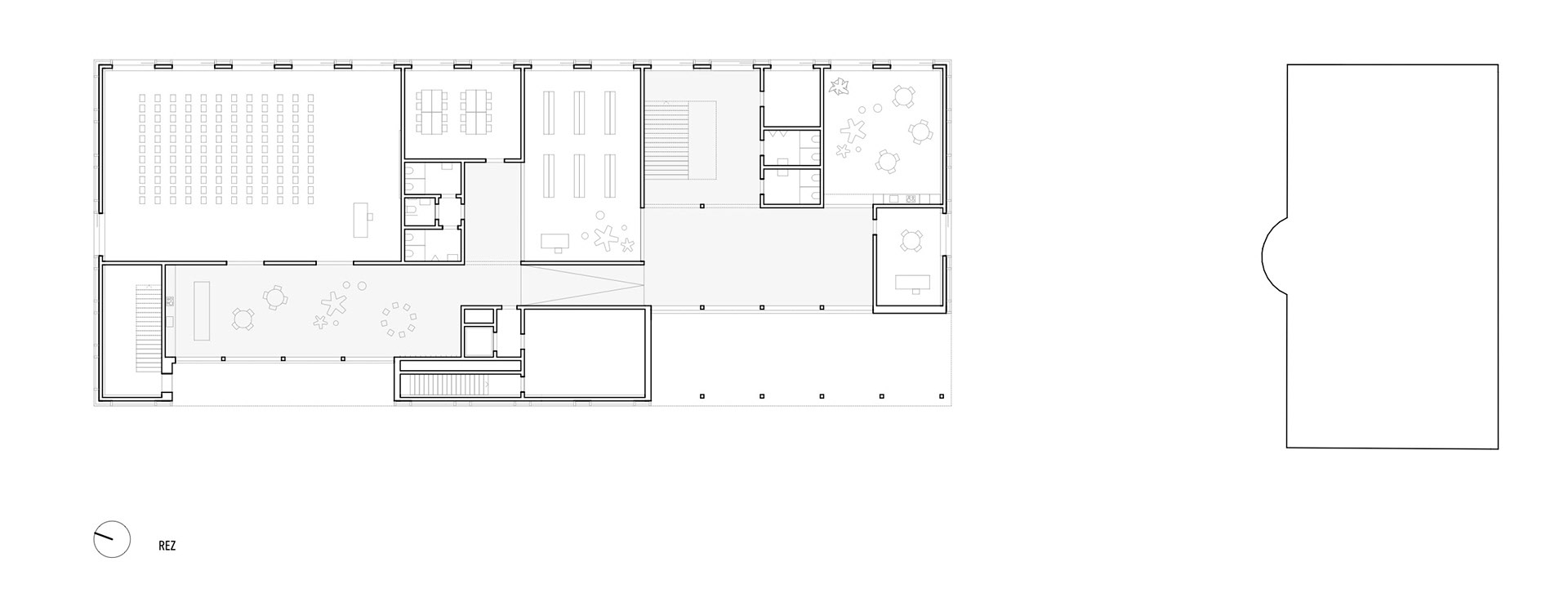
MEP ECOLE ROSSENS
Rossens
procédure: concours sur invitation
type: transformation agrandissement
année: 2021
distinction: 2ème rang