NEWS
PROJETS
ATELIER
CONTACT
NEWS
PROJETS
ATELIER
CONTACT
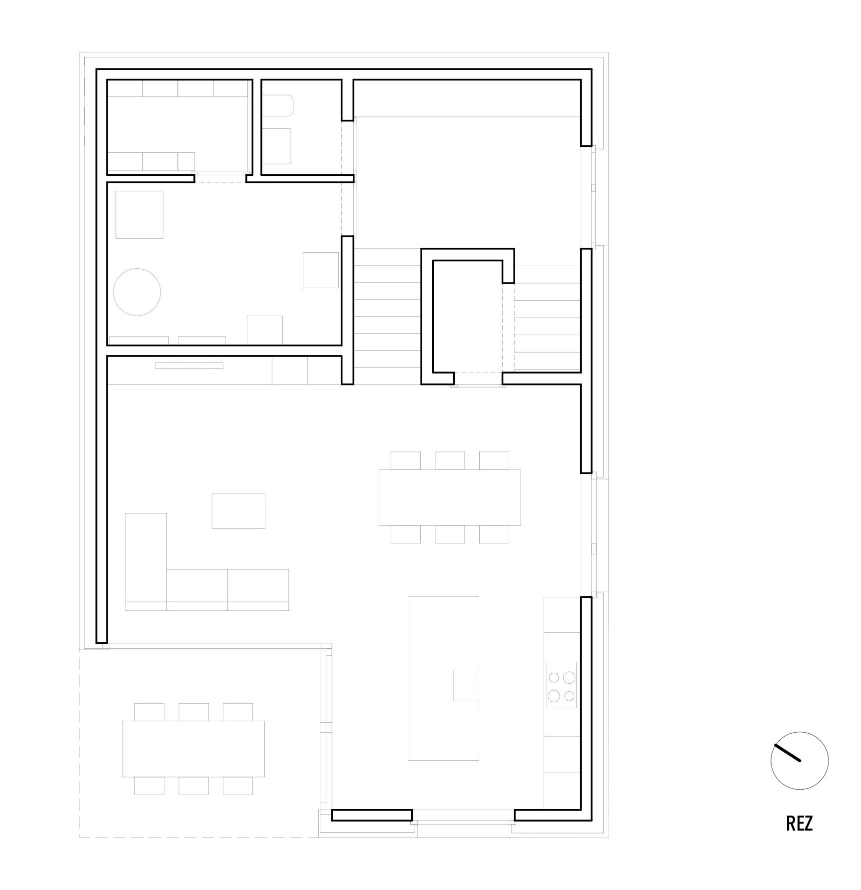
VILLA D
Arconciel
procédure: mandat direct
type: nouvelle construction
année: 2020-2022
état: terminé
photographie: alessia olivieri