NEWS
PROJETS
ATELIER
CONTACT
NEWS
PROJETS
ATELIER
CONTACT
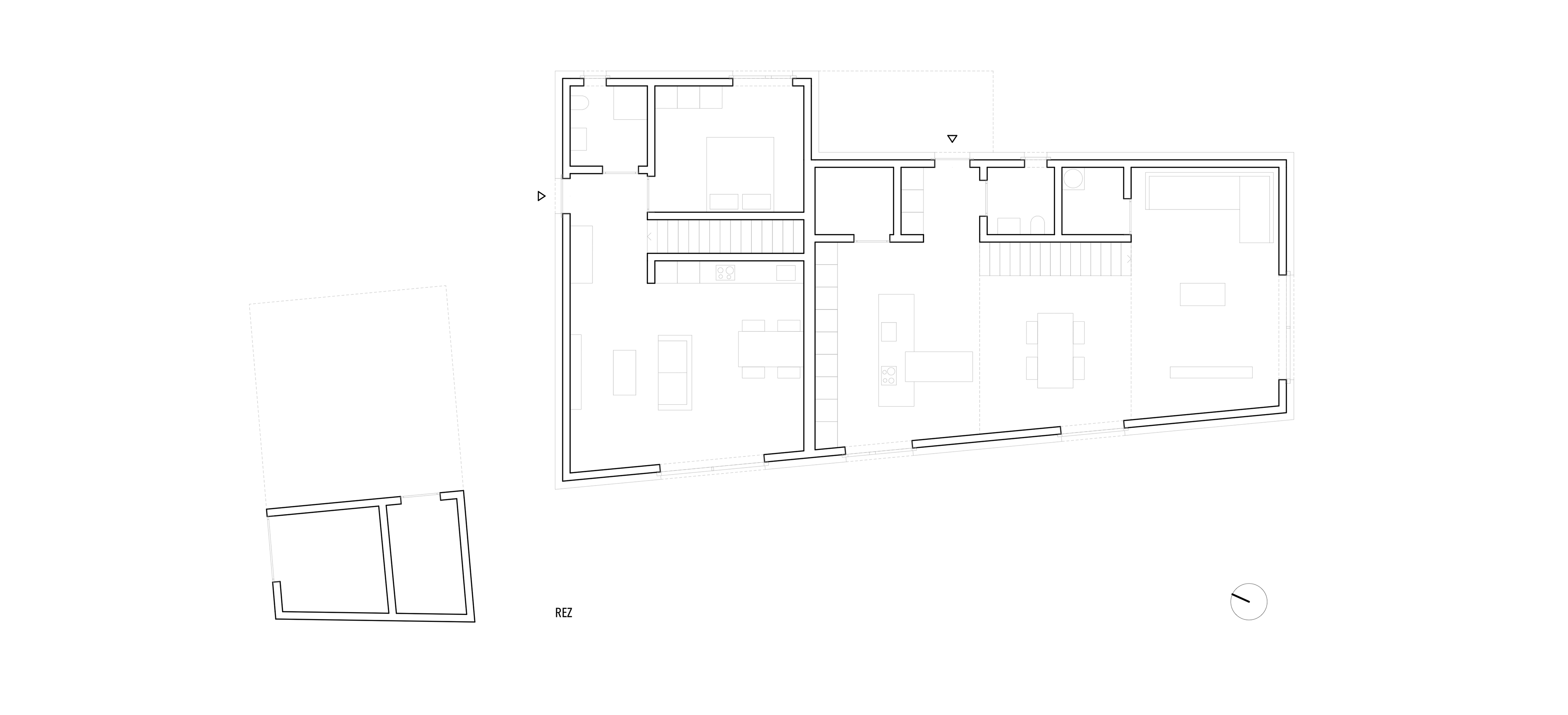
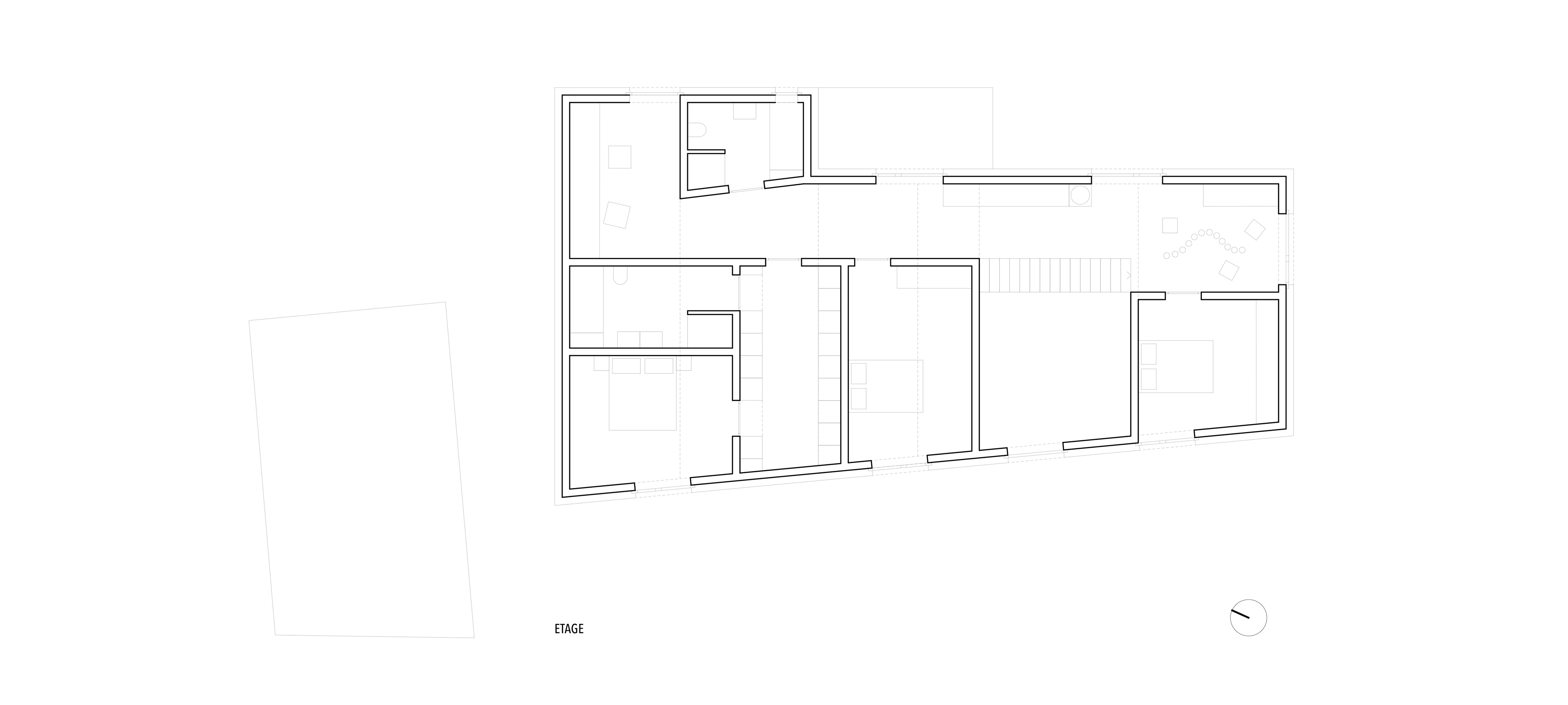
VILLA G
Grolley
procédure: mandat direct
type: nouvelle construction
année: 2020-2021
état: terminé
photographie: alessia olivieri